- Home
- Departments & Offices
- Operations, Enterprise Services, and Facilities
- Measure HH
- Project Information
- project_profiles
- ECC Continuing Education C-120 & Room 77
ECC Continuing Education C-120 & Room 77
Project Schedule
| Programming Complete | Design and DSA Approval | Construction Completion (Est.) | FFE and Move-In (Est.) |
|---|---|---|---|
| 07/02/2025 | N/A | 09/05/2025 | 09/05/25 |
Current Status/Phase: Completed
Project Progress Update
Upcoming Milestones:
- 7/2/25: Project handed to Cumming Group. District to buyout Casey electrical scope to complete contracts. ACI Comm-Data; Contracted. Cultura-Furniture; Contracted. Furniture ETA late July.
- 8/29/2025: Electrician and data installation scheduled for room C120.
- 9/2/25: Move-in of new furniture for Room C120 is scheduled for 9/2/25, with Room 77 to follow.
- 9/04/2025 - 9/05/2025: Electrical and data installation completion.
Move-in of new furniture for Room C120 is scheduled for 9/2/25, with Room 77 to follow; electrical and data installation is scheduled for completion between 9/4/25 and 9/5/25.
Project Description
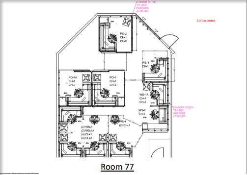
Room 77:
Install seven (7) new circuits in ECC Room 77. Per the plan, convert three (3) existing outlets into junction boxes and install new circuitry at each location. All new circuits will be pulled from the existing panel.
Room 120:
Install new outlets and circuitry to support the new furniture installation. Utilize existing outlets and floor cores as indicated on the plan. Install five (5) new circuits from the existing panel.
Relocate furniture, fixtures, and equipment (FF&E) from two offices to two designated onsite rooms. The remaining FF&E will be transported and delivered to the SDCCD Storage Facility in Mira Mesa.
Conceptual Program Plan

Project Map

Education Cultural Complex, 32° 41′ 59.01″ N, 117° 06′ 09.48″ W
Project News & Information
Additional resources, articles, and links related to this project will appear here when available. For comprehensive information about Measure HH and all ongoing projects, please explore the Measure HH website.
Project Teams
| General Contractor | ACI, Cultura & Casey Electric Inc |
| Architect | N/A |
| Structural Engineer | N/A |
| Civil Engineer | N/A |
| Mech./ Elect. Engineer | N/A |
| Executive Const. Manager | Steve Evanco |
Last updated: March 31, 2026
